De Meester | 7128092 | Te koop | ANTWERPEN ZUID - Hedenda...

ANTWERPEN ZUID - Hedendaags wonen op het Zuid

€ 680.000

Referentie: A 03.02

bedrooms 2 Slaapkamers
bathrooms 1 Badkamer
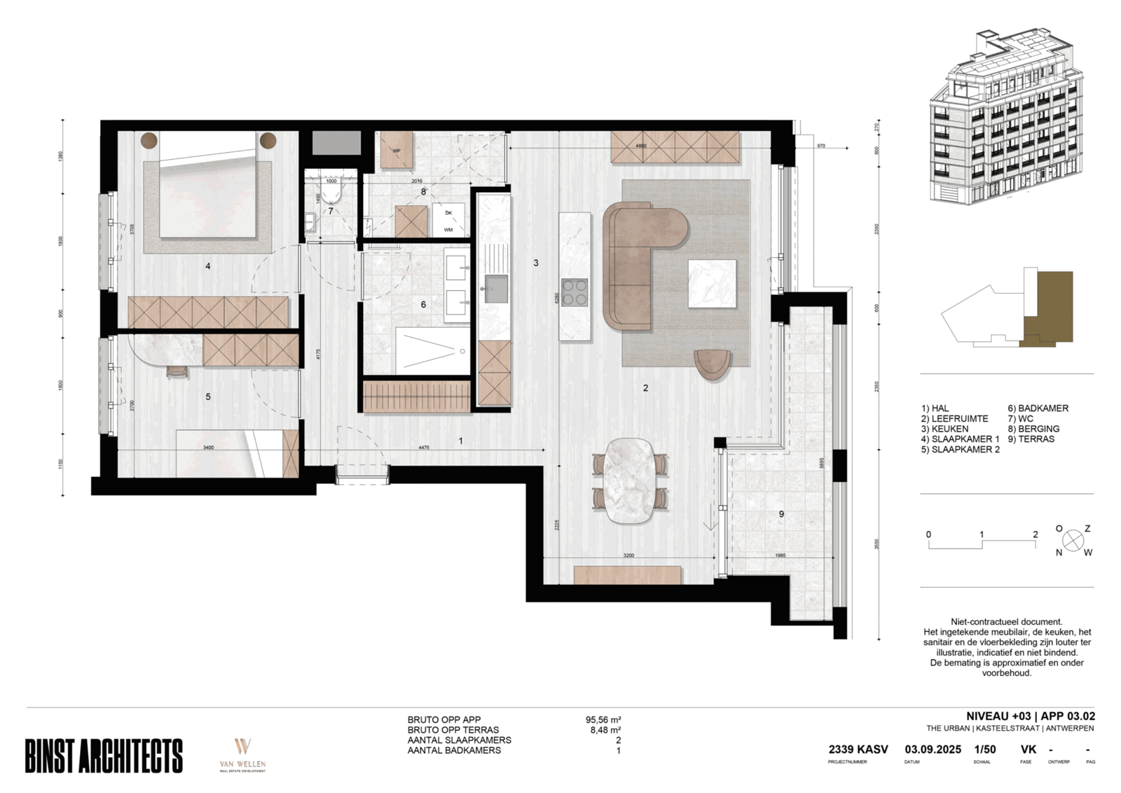
surface 96 m²

Architecturaal verfijnd, duurzaam en verweven met de dynamiek van de stad. Op een prominente zichtlocatie aan de Leien in Antwerpen-Zuid verrijst The Urban dat wonen harmonieus samenbrengt met het bruisende stadsleven. Met KMSKA, Lambermontplaats, Zuidpark en Marnixplaats op wandelafstand is de locatie op zijn minst uitstekend te benoemen.
Het project omvat 2 commerciële ruimtes, 8 luxe appartementen met twee of drie slaapkamers, elk met terrassen met zicht op het plein én een unieke penthouse.
De appartementen worden gebouwd volgens het doorzon-principe. De kamerhoge raampartijen met brede gevels creëren een overvloed aan licht en ruimtelijkheid. De penthouse heeft een uitzonderlijke gevelbreedte van 24m. De verschillende terrassen aan de voor- en achterzijde bieden panoramische zichten op de stad.
Duurzaamheid en energiezuinigheid staan centraal in de technische afwerking. Alle appartementen zullen een E-peil hebben van E20 of lager door middel van warmtepomptechniek, zonnepanelen en driedubbele beglazing.
De koper heeft de mogelijkheid om de inrichting van de appartementen naar eigen keuze af te werken aan de hand van de stelposten voorzien in het lastenboek.
Het wooncomfort wordt verhoogd met een ondergrondse parkeergarage.

Sluiten

Antwerpen appartement

Architecturaal verfijnd, duurzaam en verweven met de dynamiek van de stad. Op een prominente zichtlocatie aan de Leien in Antwerpen-Zuid verrijst The Urban dat wonen harmonieus samenbrengt met het bruisende stadsleven. Met KMSKA, Lambermontplaats, Zuidpark en Marnixplaats op wandelafstand is de locatie op zijn minst uitstekend te benoemen.
Het project omvat 2 commerciële ruimtes, 8 luxe appartementen met twee of drie slaapkamers, elk met terrassen met zicht op het plein én een unieke penthouse.
De appartementen worden gebouwd volgens het doorzon-principe. De kamerhoge raampartijen met brede gevels creëren een overvloed aan licht en ruimtelijkheid. De penthouse heeft een uitzonderlijke gevelbreedte van 24m. De verschillende terrassen aan de voor- en achterzijde bieden panoramische zichten op de stad.
Duurzaamheid en energiezuinigheid staan centraal in de technische afwerking. Alle appartementen zullen een E-peil hebben van E20 of lager door middel van warmtepomptechniek, zonnepanelen en driedubbele beglazing.
De koper heeft de mogelijkheid om de inrichting van de appartementen naar eigen keuze af te werken aan de hand van de stelposten voorzien in het lastenboek.
Het wooncomfort wordt verhoogd met een ondergrondse parkeergarage.

Sluiten

ANTWERPEN ZUID - Hedendaags wonen op het Zuid

Architecturaal verfijnd, duurzaam en verweven met de dynamiek van de stad. Op een prominente zichtlocatie aan de Leien in Antwerpen-Zuid verrijst The Urban dat wonen harmonieus samenbrengt met het bruisende stadsleven. Met KMSKA, Lambermontplaats, Zuidpark en Marnixplaats op wandelafstand is de locatie op zijn minst uitstekend te benoemen.
Het project omvat 2 commerciële ruimtes, 8 luxe appartementen met twee of drie slaapkamers, elk met terrassen met zicht op het plein én een unieke penthouse.
De appartementen worden gebouwd volgens het doorzon-principe. De kamerhoge raampartijen met brede gevels creëren een overvloed aan licht en ruimtelijkheid. De penthouse heeft een uitzonderlijke gevelbreedte van 24m. De verschillende terrassen aan de voor- en achterzijde bieden panoramische zichten op de stad.
Duurzaamheid en energiezuinigheid staan centraal in de technische afwerking. Alle appartementen zullen een E-peil hebben van E20 of lager door middel van warmtepomptechniek, zonnepanelen en driedubbele beglazing.
De koper heeft de mogelijkheid om de inrichting van de appartementen naar eigen keuze af te werken aan de hand van de stelposten voorzien in het lastenboek.
Het wooncomfort wordt verhoogd met een ondergrondse parkeergarage.

Pand Details

Adres
Kasteelstraat 51-57, 2000 Antwerpen
Bewoonbare oppervlakte
Ongeveer 96 m²
Oppervlakte terras
Ongeveer 9 m²
Slaapkamers
2
Badkamer
1
Parking
Ja
Bouwjaar
2026
Verwarming
Individueel warmtepomp
Elektriciteitscertificaat
Ja, conform

Wettelijke Informatie

Stedenbouwkundige bestemming
Woongebied met een cult., hist. en/of esthetische waarde
Stedenbouwkundige vergunning
Vergunning uitgereikt
Dagvaarding en herstelvordering
Geen rechterlijke herstelmaatregel of bestuurlijke maatregel opgelegd
Voorkooprecht
Geen voorkooprecht ruimtelijke ordening aanwezig
Verkavelingsvergunning
Nee
Overstromingsgevoelig gebied
Niet meegedeeld
Energielabel
A
Sluiten

Antwerpen appartement

Bekijk plattegrond

floorplan
Sluiten

Ontdek de omgeving

Het Zuid vormt het zuidelijke deel van de Antwerpse binnenstad.

Door de vele restaurants, bars, designzaken en galeries staat het Zuid samen met het Eilandje bekend als één van de meest trendy wijken van Antwerpen. De buurt wordt ook wel eens de Museumwijk genoemd dankzij het Koninklijk Museum voor Schone Kunsten, het Museum van Hedendaagse Kunst, het Fotomuseum en Cinema Zuid.

Statige herenwoningen en sierlijke art-nouveauhuizen bepalen hier het straatbeeld. Het geometrisch plan van het Zuid, met de brede straten in sterpatroon, is geïnspireerd op wat architect Haussmann in Parijs realiseerde. Dit patroon is herkenbaar op de Marnixplaats, Lambermontplaats, Leopold de Waelplaats, Gillisplaats met de Waterpoort en de Bolivarplaats met het Nieuw Justitiepaleis.

Een extra grote troef zijn de Gedempte Zuiderdokken die op dit moment opnieuw aangelegd worden. Het meest zuidelijke deel tussen de Gillisplaats en het Nieuw Zuid werd al ingehuldigd, met groot succes. Het park is maar liefst drie keer zo groot als de Groenplaats; het heeft twee speeltuinen, een samentuin, een stiltetuin, een speelveld, een basketveld, veel bomen en ander groen. Een prachtig lange wandelpromenade overschaduwd door bomenrijen biedt verkoeling in de zomer. Kortom, voor ieder wat wils. Er is zelfs een hemelwaterput die het regenwater recupereert. Bovendien worden de dokken opnieuw voorzien van heel wat parkeerruimte, ditmaal ondergronds. Tegen de lente van 2024 zou het volledige park van 7 hectare groot klaar moeten zijn.

 

Ik wens

Bedankt!

Wij hebben uw aanvraag goed ontvangen en zullen u zo spoedig mogelijk contacteren.

Jordaenskaai 21
2000 Antwerpen

03 227 06 36
info@demeester.eu

Vergelijkbare panden

Bekijk hieronder de panden die ook voldoen aan uw criteria.

Antwerpen appartement

ANTWERPEN CENTRUM - FALCONHOVEN

€ 399.000

bedrooms 2 Slaapkamers
bathrooms 1 Badkamer
surface 96 m²
Antwerpen appartement

ANTWERPEN ZUID - Luxueus wonen op het Zuid

€ 978.437

Verlatstraat 11-13, 2000 Antwerpen

bedrooms 2 Slaapkamers
bathrooms 2 Badkamers
surface 126 m²
Antwerpen appartement

ANTWERPEN - De Byle - Exclusief woonerf

€ 395.000

bedrooms 1 Slaapkamer
bathrooms 1 Badkamer
surface 79 m²
Antwerpen appartement

ANTWERPEN - Prestigieus woonproject

€ 585.000

bedrooms 2 Slaapkamers
bathrooms 1 Badkamer
surface 96 m²
Antwerpen appartement

ANTWERPEN - De Byle - Exclusief woonerf

€ 700.000

bedrooms 2 Slaapkamers
bathrooms 2 Badkamers
surface 143 m²
Antwerpen appartement

ANTWERPEN - De Byle - Exclusief woonerf

€ 415.000

bedrooms 1 Slaapkamer
bathrooms 1 Badkamer
surface 87 m²
Zuid

Zuid

Het Zuid vormt het zuidelijke deel van de Antwerpse binnenstad.

Door de vele restaurants, bars, designzaken en galeries staat het Zuid samen met het Eilandje bekend als één van de meest trendy wijken van Antwerpen. De buurt wordt ook wel eens de Museumwijk genoemd dankzij het Koninklijk Museum voor Schone Kunsten, het Museum van Hedendaagse Kunst, het Fotomuseum en Cinema Zuid.

Statige herenwoningen en sierlijke art-nouveauhuizen bepalen hier het straatbeeld. Het geometrisch plan van het Zuid, met de brede straten in sterpatroon, is geïnspireerd op wat architect Haussmann in Parijs realiseerde. Dit patroon is herkenbaar op de Marnixplaats, Lambermontplaats, Leopold de Waelplaats, Gillisplaats met de Waterpoort en de Bolivarplaats met het Nieuw Justitiepaleis.

Een extra grote troef zijn de Gedempte Zuiderdokken die op dit moment opnieuw aangelegd worden. Het meest zuidelijke deel tussen de Gillisplaats en het Nieuw Zuid werd al ingehuldigd, met groot succes. Het park is maar liefst drie keer zo groot als de Groenplaats; het heeft twee speeltuinen, een samentuin, een stiltetuin, een speelveld, een basketveld, veel bomen en ander groen. Een prachtig lange wandelpromenade overschaduwd door bomenrijen biedt verkoeling in de zomer. Kortom, voor ieder wat wils. Er is zelfs een hemelwaterput die het regenwater recupereert. Bovendien worden de dokken opnieuw voorzien van heel wat parkeerruimte, ditmaal ondergronds. Tegen de lente van 2024 zou het volledige park van 7 hectare groot klaar moeten zijn.

 

Contacteer ons voor een vrijblijvende schatting van uw eigendom

Het adres van uw eigendom:

Bedankt!

Wij hebben uw aanvraag goed ontvangen en zullen u zo spoedig mogelijk contacteren.

Jordaenskaai 21
2000 Antwerpen

03 227 06 36
info@demeester.eu

Contacteer ons

Bedankt!

Wij hebben uw aanvraag goed ontvangen en zullen u zo spoedig mogelijk contacteren.

Jordaenskaai 21
2000 Antwerpen

03 227 06 36
info@demeester.eu

Ik wens

Bedankt!

Wij hebben uw aanvraag goed ontvangen en zullen u zo spoedig mogelijk contacteren.

Jordaenskaai 21
2000 Antwerpen

03 227 06 36
info@demeester.eu

Uw criteria

tot

Contactgegevens

Dank voor uw aanvraag.

Wij hebben uw selectiecriteria genoteerd en houden u verder op de hoogte.

Jordaenskaai 21
2000 Antwerpen

03 227 06 36
info@demeester.eu

Selecteer nog één pand om te vergelijken

Terug naar de lijst

Selecteer nog twee panden om te vergelijken.

Terug naar de lijst